Menu
Un projet réalisé par :PM4  Architecte à Chatou

WorKingloft

 Chatou - 78
PM4
Accueil Projets WorKingloft

Création d'un loft

WorKingloft

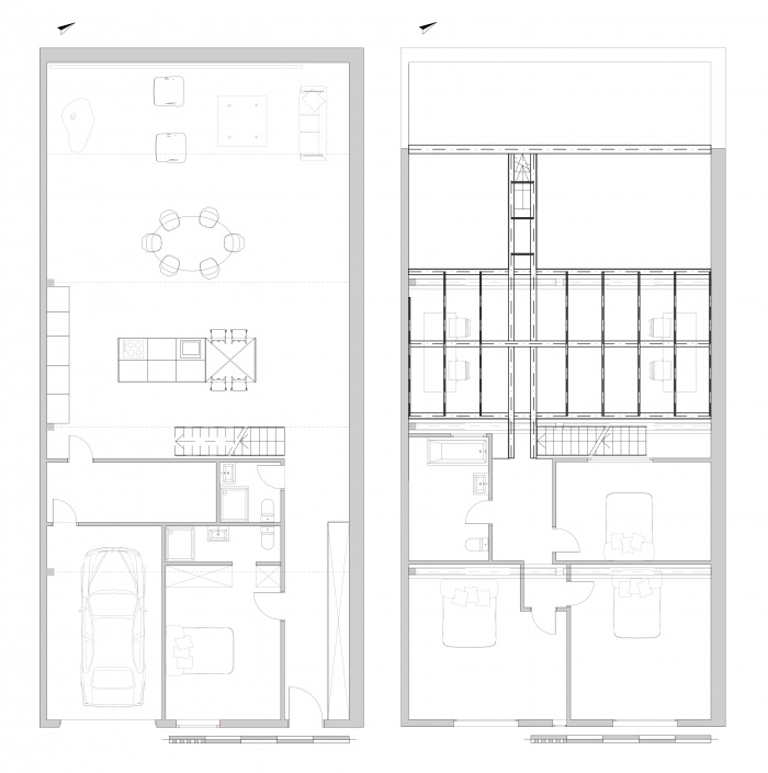
Initialement construit pour être un studio de danse, le bâtiment est racheté afin d’en faire un lieu d'habitation comprenant aussi une partie bureau et une zone de réception des clients.
Les espaces fermés, chambres, salle de bain et nécessaire garage sont prévus côté rue avec la création de nouvelles ouvertures.
En Rez-de-chaussée, côté intérieur, un vaste espace ouvert intègre cuisine, partie repas et partie salon.
En partie haute, la façade intérieure et mitoyenne est ouverte et reculée afin de créer de nouvelles ouvertures verticales et une terrasse. Au dessus des espaces de vie vient se déployer une vaste mezzanine au sol fait de métal perforé laissant passer la lumière vers l'étage inférieur qui sera aménagé pour les bureaux. Une passerelle du même métal permet l'accès à la terrasse.

  • WorKingloft : steeloft02 02
  • WorKingloft : steeloft03 02
  • WorKingloft : steeloft04 02
  • WorKingloft : steeloft05 02
  • WorKingloft : steeloft06
  • WorKingloft : steeloft07

Parlez-moi de votre projet

PM4
Appelez-moi

0678634130

Protection de vos données personnelles

Depuis toujours, architectes-france.com ne transfère aucune donnée personnelle à d'autres acteurs que ceux directement concernés par le projet (architectes, architectes d'intérieur...) et qui appartiennent à son réseau. Nos listes ne sont jamais transmises ou vendues à des partenaires extérieurs, même si ceux-ci appartiennent au domaine de la construction.
Toute modification dans ce domaine ne serait effectuée qu'avec votre consentement.

Je consens à ce que mes données personnelles soient collectées pour permettre à architectes-france de transférer votre projet aux architectes. Seul Architectes-france, ses équipes internes et la maitrise d'oeuvre concernée par le projet y ont accès. Aucune transmission de données à des tiers à l'exclusion de ceux décrits ci dessus n'est réalisée.

Mes données téléphoniques seront uniquement utilisées par Architectes-france.com et les architectes de notre réseau dans le cadre de la qualification et du suivi de mon projet.

Les données sont conservées pendant une durée de 18 mois courant à partir des derniers contacts effectifs entre architectes-france et vous ou architectes-france et un membre de la maitrise d'oeuvre en rapport avec ce projet et qui serait en relation avec architectes-france.

Conformément à la loi « informatique et libertés », vous pouvez exercer votre droit d'accès aux données vous concernant et les faire rectifier en contactant : Architectes-france, 23 avenue du Mirail - parc du Mirail - 33370 Artigues-près Bordeaux. Tél. 05.47.74.51.01 - contact@architectes-france.com

Parlez-moi
de votre besoin
Appelez-moi

0678634130

Protection de vos données personnelles

Depuis toujours, architectes-france.com ne transfère aucune donnée personnelle à d'autres acteurs que ceux directement concernés par le projet (architectes, architectes d'intérieur...) et qui appartiennent à son réseau. Nos listes ne sont jamais transmises ou vendues à des partenaires extérieurs, même si ceux-ci appartiennent au domaine de la construction.
Toute modification dans ce domaine ne serait effectuée qu'avec votre consentement.

Je consens à ce que mes données personnelles soient collectées pour permettre à architectes-france de transférer votre projet aux architectes. Seul Architectes-france, ses équipes internes et la maitrise d'oeuvre concernée par le projet y ont accès. Aucune transmission de données à des tiers à l'exclusion de ceux décrits ci dessus n'est réalisée.

Mes données téléphoniques seront uniquement utilisées par Architectes-france.com et les architectes de notre réseau dans le cadre de la qualification et du suivi de mon projet.

Les données sont conservées pendant une durée de 18 mois courant à partir des derniers contacts effectifs entre architectes-france et vous ou architectes-france et un membre de la maitrise d'oeuvre en rapport avec ce projet et qui serait en relation avec architectes-france.

Conformément à la loi « informatique et libertés », vous pouvez exercer votre droit d'accès aux données vous concernant et les faire rectifier en contactant : Architectes-france, 23 avenue du Mirail - parc du Mirail - 33370 Artigues-près Bordeaux. Tél. 05.47.74.51.01 - contact@architectes-france.com