Menu
Un projet réalisé par :PM4  Architecte à Paris

whatAloft / Création de loft Paris 18

 Paris - 75
PM4
Accueil Projets whatAloft / Création de loft Paris 18

whatAloft
transformation d'ateliers en loft Paris 18
130m2 au sol, 87m2 Carrez
Pierrick Malenfant/Nicolas Thomelin
©photos Fabienne Delafraye
publié dans À Vivre #82

whatAloft / Création de loft Paris 18

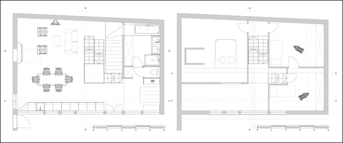
Trois ateliers cloisonnés et un étage anciennement occupés par un imprimeur et photographe.
Avec une grande verrière sur un tiers de l'espace environ, quelques fenêtres de toit à l'étage, des ouvertures donnant sur le couloir et une fenêtre normale donnant sur la cour, l'espace principal reçoit peu de lumière directe et cela devient une problématique importante du projet.
La verrière éclaire le rez de chaussée ainsi que les fenêtres donnant sur le couloir et une des fenêtres de toit devient un puit de lumière pour éclairer le fond du loft.
La seconde contrainte spatiale est une grosse poutre qui traverse l'espace en longueur à partir de 3m50 de hauteur empêchant ainsi de passer d'un côté à l'autre de l'étage.
Un meuble escalier composé d'une première volée de marches arrivant sur un plateau à mi-hauteur permet de passer sous la poutre et deux escaliers desservent le niveau supérieur de part et d'autre de la poutre.
Le meuble escalier est construit de la même façon que la cuisine en tôle d'acier brut verni.
L'escalier dessert ainsi, d'un côté deux chambres situées dans l'espace existant, et de l'autre côté la chambre créée au dessous de la verrière, nouveau volume largement ouvert.

  • whatAloft / Création de loft Paris 18 : image_projet_mini_81894
  • whatAloft / Création de loft Paris 18 : whataloft21
  • whatAloft / Création de loft Paris 18 : whataloft23
  • whatAloft / Création de loft Paris 18 : whataloft26
  • whatAloft / Création de loft Paris 18 : whataloft24
  • whatAloft / Création de loft Paris 18 : whataloft25
  • whatAloft / Création de loft Paris 18 : whataloft01
  • whatAloft / Création de loft Paris 18 : whataloft02
  • whatAloft / Création de loft Paris 18 : whataloft03
  • whatAloft / Création de loft Paris 18 : whateloft13
  • whatAloft / Création de loft Paris 18 : Couv82

Parlez-moi de votre projet

PM4
Appelez-moi

0678634130

Protection de vos données personnelles

Depuis toujours, architectes-france.com ne transfère aucune donnée personnelle à d'autres acteurs que ceux directement concernés par le projet (architectes, architectes d'intérieur...) et qui appartiennent à son réseau. Nos listes ne sont jamais transmises ou vendues à des partenaires extérieurs, même si ceux-ci appartiennent au domaine de la construction.
Toute modification dans ce domaine ne serait effectuée qu'avec votre consentement.

Je consens à ce que mes données personnelles soient collectées pour permettre à architectes-france de transférer votre projet aux architectes. Seul Architectes-france, ses équipes internes et la maitrise d'oeuvre concernée par le projet y ont accès. Aucune transmission de données à des tiers à l'exclusion de ceux décrits ci dessus n'est réalisée.

Mes données téléphoniques seront uniquement utilisées par Architectes-france.com et les architectes de notre réseau dans le cadre de la qualification et du suivi de mon projet.

Les données sont conservées pendant une durée de 18 mois courant à partir des derniers contacts effectifs entre architectes-france et vous ou architectes-france et un membre de la maitrise d'oeuvre en rapport avec ce projet et qui serait en relation avec architectes-france.

Conformément à la loi « informatique et libertés », vous pouvez exercer votre droit d'accès aux données vous concernant et les faire rectifier en contactant : Architectes-france, 23 avenue du Mirail - parc du Mirail - 33370 Artigues-près Bordeaux. Tél. 05.47.74.51.01 - contact@architectes-france.com

Parlez-moi
de votre besoin
Appelez-moi

0678634130

Protection de vos données personnelles

Depuis toujours, architectes-france.com ne transfère aucune donnée personnelle à d'autres acteurs que ceux directement concernés par le projet (architectes, architectes d'intérieur...) et qui appartiennent à son réseau. Nos listes ne sont jamais transmises ou vendues à des partenaires extérieurs, même si ceux-ci appartiennent au domaine de la construction.
Toute modification dans ce domaine ne serait effectuée qu'avec votre consentement.

Je consens à ce que mes données personnelles soient collectées pour permettre à architectes-france de transférer votre projet aux architectes. Seul Architectes-france, ses équipes internes et la maitrise d'oeuvre concernée par le projet y ont accès. Aucune transmission de données à des tiers à l'exclusion de ceux décrits ci dessus n'est réalisée.

Mes données téléphoniques seront uniquement utilisées par Architectes-france.com et les architectes de notre réseau dans le cadre de la qualification et du suivi de mon projet.

Les données sont conservées pendant une durée de 18 mois courant à partir des derniers contacts effectifs entre architectes-france et vous ou architectes-france et un membre de la maitrise d'oeuvre en rapport avec ce projet et qui serait en relation avec architectes-france.

Conformément à la loi « informatique et libertés », vous pouvez exercer votre droit d'accès aux données vous concernant et les faire rectifier en contactant : Architectes-france, 23 avenue du Mirail - parc du Mirail - 33370 Artigues-près Bordeaux. Tél. 05.47.74.51.01 - contact@architectes-france.com