Menu
Un projet réalisé par :PM4  Architecte à Bazoches-les-Gallerandes

tHinCenter / Cabinet médical 45

 Bazoches-les-Gallerandes - 45
PM4
Accueil Projets tHinCenter / Cabinet médical 45

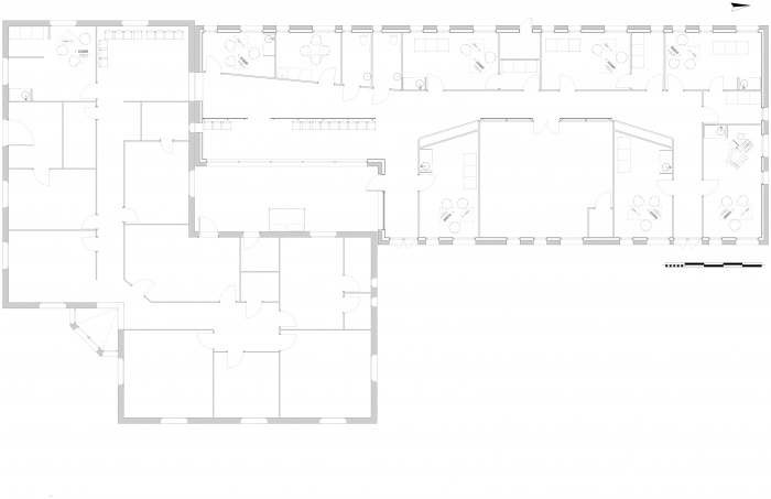
Extension d'un cabinet médical

tHinCenter / Cabinet médical 45

Afin d’attirer de nouveaux spécialistes dans un village du Loiret, il faut doubler la surface existante de l’ancien cabinet médical.
La nouvelle extension se compose de cabinets à destination de médecins spécialistes et de kinésithérapeutes, d'une salle d'exercice ainsi que d'une nouvelle salle d'attente.
Le bâtiment tout en longueur s'étend autour d'un patio vers le fond de la parcelle.
Construit en maçonnerie traditionnelle et charpente métallique, il est recouvert d'une toiture végétalisée qui l'intègre discrètement au jardin et le rend quasiment invisible du centre classé du village comme des récents pavillons aux toits à doubles pentes.

  • tHinCenter / Cabinet médical 45 : image_projet_mini_93258
  • tHinCenter / Cabinet médical 45 : image_projet_mini_93259
  • tHinCenter / Cabinet médical 45 : thincenter03
  • tHinCenter / Cabinet médical 45 : thincenter05.JPG
  • tHinCenter / Cabinet médical 45 : thincenter06
  • tHinCenter / Cabinet médical 45 : thincenter05 copie
  • tHinCenter / Cabinet médical 45 : thincenter08

Parlez-moi de votre projet

PM4
Appelez-moi

0678634130

Protection de vos données personnelles

Depuis toujours, architectes-france.com ne transfère aucune donnée personnelle à d'autres acteurs que ceux directement concernés par le projet (architectes, architectes d'intérieur...) et qui appartiennent à son réseau. Nos listes ne sont jamais transmises ou vendues à des partenaires extérieurs, même si ceux-ci appartiennent au domaine de la construction.
Toute modification dans ce domaine ne serait effectuée qu'avec votre consentement.

Je consens à ce que mes données personnelles soient collectées pour permettre à architectes-france de transférer votre projet aux architectes. Seul Architectes-france, ses équipes internes et la maitrise d'oeuvre concernée par le projet y ont accès. Aucune transmission de données à des tiers à l'exclusion de ceux décrits ci dessus n'est réalisée.

Mes données téléphoniques seront uniquement utilisées par Architectes-france.com et les architectes de notre réseau dans le cadre de la qualification et du suivi de mon projet.

Les données sont conservées pendant une durée de 18 mois courant à partir des derniers contacts effectifs entre architectes-france et vous ou architectes-france et un membre de la maitrise d'oeuvre en rapport avec ce projet et qui serait en relation avec architectes-france.

Conformément à la loi « informatique et libertés », vous pouvez exercer votre droit d'accès aux données vous concernant et les faire rectifier en contactant : Architectes-france, 23 avenue du Mirail - parc du Mirail - 33370 Artigues-près Bordeaux. Tél. 05.47.74.51.01 - contact@architectes-france.com

Parlez-moi
de votre besoin
Appelez-moi

0678634130

Protection de vos données personnelles

Depuis toujours, architectes-france.com ne transfère aucune donnée personnelle à d'autres acteurs que ceux directement concernés par le projet (architectes, architectes d'intérieur...) et qui appartiennent à son réseau. Nos listes ne sont jamais transmises ou vendues à des partenaires extérieurs, même si ceux-ci appartiennent au domaine de la construction.
Toute modification dans ce domaine ne serait effectuée qu'avec votre consentement.

Je consens à ce que mes données personnelles soient collectées pour permettre à architectes-france de transférer votre projet aux architectes. Seul Architectes-france, ses équipes internes et la maitrise d'oeuvre concernée par le projet y ont accès. Aucune transmission de données à des tiers à l'exclusion de ceux décrits ci dessus n'est réalisée.

Mes données téléphoniques seront uniquement utilisées par Architectes-france.com et les architectes de notre réseau dans le cadre de la qualification et du suivi de mon projet.

Les données sont conservées pendant une durée de 18 mois courant à partir des derniers contacts effectifs entre architectes-france et vous ou architectes-france et un membre de la maitrise d'oeuvre en rapport avec ce projet et qui serait en relation avec architectes-france.

Conformément à la loi « informatique et libertés », vous pouvez exercer votre droit d'accès aux données vous concernant et les faire rectifier en contactant : Architectes-france, 23 avenue du Mirail - parc du Mirail - 33370 Artigues-près Bordeaux. Tél. 05.47.74.51.01 - contact@architectes-france.com