Menu
Un projet réalisé par :PM4  Architecte à Pantin

MiNiMaBuilding / Construction immeuble 93

 Pantin - 93
PM4
Accueil Projets MiNiMaBuilding / Construction immeuble 93

Construction d'un immeuble sur une parcelle de petite taille.
Pierrick Malenfant/Nicolas Thomelin

MiNiMaBuilding / Construction immeuble 93

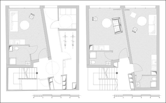
Commande d'un promoteur privé, le projet est situé sur une parcelle très petite, 75m2, en zone urbaine dense.
La demande est de faire la maximum de logements possibles, soit, après étude de la question, 6 studios et un duplex aux derniers étages.
Le forme du bâtiment, et sa circulation en extérieur par des escaliers en métal, sont donnés par les contraintes budgétaires et réglementaires.
Les seules ouvertures possibles étant côté rue, cette façade est ouverte au maximum par de larges baies vitrées.
Les mitoyennetés de l'immeuble obligèrenet à avoir une isolation par l'intérieur mais la façade est entièrement recouverte de membrane plastique FPO tandis qu'une boite en bois vient se poser sur le toit, rapportant un peu de chaleur et de matérialité à cet édifice aux contours flous.

  • MiNiMaBuilding / Construction immeuble 93 : image_projet_mini_76478
  • MiNiMaBuilding / Construction immeuble 93 : minimabuild03
  • MiNiMaBuilding / Construction immeuble 93 : minimabuild04
  • MiNiMaBuilding / Construction immeuble 93 : minimabuild05
  • MiNiMaBuilding / Construction immeuble 93 : minimabuild06

Parlez-moi de votre projet

PM4
Appelez-moi

0678634130

Protection de vos données personnelles

Depuis toujours, architectes-france.com ne transfère aucune donnée personnelle à d'autres acteurs que ceux directement concernés par le projet (architectes, architectes d'intérieur...) et qui appartiennent à son réseau. Nos listes ne sont jamais transmises ou vendues à des partenaires extérieurs, même si ceux-ci appartiennent au domaine de la construction.
Toute modification dans ce domaine ne serait effectuée qu'avec votre consentement.

Je consens à ce que mes données personnelles soient collectées pour permettre à architectes-france de transférer votre projet aux architectes. Seul Architectes-france, ses équipes internes et la maitrise d'oeuvre concernée par le projet y ont accès. Aucune transmission de données à des tiers à l'exclusion de ceux décrits ci dessus n'est réalisée.

Mes données téléphoniques seront uniquement utilisées par Architectes-france.com et les architectes de notre réseau dans le cadre de la qualification et du suivi de mon projet.

Les données sont conservées pendant une durée de 18 mois courant à partir des derniers contacts effectifs entre architectes-france et vous ou architectes-france et un membre de la maitrise d'oeuvre en rapport avec ce projet et qui serait en relation avec architectes-france.

Conformément à la loi « informatique et libertés », vous pouvez exercer votre droit d'accès aux données vous concernant et les faire rectifier en contactant : Architectes-france, 23 avenue du Mirail - parc du Mirail - 33370 Artigues-près Bordeaux. Tél. 05.47.74.51.01 - contact@architectes-france.com

Parlez-moi
de votre besoin
Appelez-moi

0678634130

Protection de vos données personnelles

Depuis toujours, architectes-france.com ne transfère aucune donnée personnelle à d'autres acteurs que ceux directement concernés par le projet (architectes, architectes d'intérieur...) et qui appartiennent à son réseau. Nos listes ne sont jamais transmises ou vendues à des partenaires extérieurs, même si ceux-ci appartiennent au domaine de la construction.
Toute modification dans ce domaine ne serait effectuée qu'avec votre consentement.

Je consens à ce que mes données personnelles soient collectées pour permettre à architectes-france de transférer votre projet aux architectes. Seul Architectes-france, ses équipes internes et la maitrise d'oeuvre concernée par le projet y ont accès. Aucune transmission de données à des tiers à l'exclusion de ceux décrits ci dessus n'est réalisée.

Mes données téléphoniques seront uniquement utilisées par Architectes-france.com et les architectes de notre réseau dans le cadre de la qualification et du suivi de mon projet.

Les données sont conservées pendant une durée de 18 mois courant à partir des derniers contacts effectifs entre architectes-france et vous ou architectes-france et un membre de la maitrise d'oeuvre en rapport avec ce projet et qui serait en relation avec architectes-france.

Conformément à la loi « informatique et libertés », vous pouvez exercer votre droit d'accès aux données vous concernant et les faire rectifier en contactant : Architectes-france, 23 avenue du Mirail - parc du Mirail - 33370 Artigues-près Bordeaux. Tél. 05.47.74.51.01 - contact@architectes-france.com