
cOmbléMiNiMa.1 / Aménagement comble Paris 10
Transformation d'un appartement en duplex avec aménagement des combles.
Pierrick Malenfant/Nicolas Thomelin
Un appartement au dernier étage d'un immeuble avec une partie sous les combles rachetée à la copropriété.
L'espace sous les combles ne donnant que très peu de mètres carrés habitables et la hauteur sous plafond à l'étage principal étant assez importante, rapidement le choix fut fait de démolir le plancher des combles en le remplaçant par une structure métallique et un plancher partiel, augmentant la superficie de l'appartement ainsi que son volume.
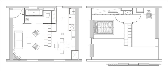
Au rez de chaussée est créé un grand meuble en contreplaqué qui intègre des rangements, une salle de bain, un escalier bibliothèque et la cuisine.
A l'étage, la chambre parentale et le bureau/chambre d'enfant sont largement ouverts sur le séjour par des verrières en métal.
-
-
-
-
-
-
plan rdc/plan r+1
-
coupe chambre/coupe bureau
vue chantier